KRONOLOGIJA DOGODKOV OKOLI TEMPIRANE KEMIČNE BOMBE KEMIS d.o.o., postavitev kazenske in politične odgovornosti uradnikov in funkcionarjev pred in po požaru na Vrhniki ter vprašanja, na katera bodo odgovorni morali odgovoriti.
Tako se je začelo.

Kemis d.o.o., ki se ukvarja z zbiranjem, predelavo in uničevanjem nevarnih odpadkov, so hoteli umestiti že leta 2005 v Trbovlje, a se ni izšlo zaradi terena, ki je bil izbran, kjer je bil nekdaj rudnik. Pa še civilna iniciativa, ki je delovala tam, je nasprotovala, ker so imeli veliko dela že z Lafargom.
V drugi polovici leta 2006 se je začelo umeščanje Kemis-a na Vrhniko. Tudi tukaj so naleteli na težave krajanov predvsem Sinje Gorice, ki so zbirali podpise, da se tako nevarno dejavnost ne umesti na Vrhniko. Šlo je tako daleč, da je Kemis d.o.o. leta 2008 organiziral izlet v Avstrijo, da bi pokazali tistim najbolj glasnim, kakšno podjetje bodo zgradili na Vrhniki, da so jih pomirili.
16. junija 2009 se je zgodilo slavnostno odprtje Kemisovega obrata na Vrhniki.

Z leve proti desni: Direktor Kemis d.o.o. g. Emil Nanut, takratni župan Vrhnike g. Marjan Rihar, takratni minister za okolje g. Karl Erjavec in predsednik uprave Gorenja, ki je lastnik Kemis-a g. Franjo Bobinac.
Tisti, ki je umestil tako nevarno dejavnost na območje Nature 2000, v krajinski park, ob potok Tojnica in v urbano okolje, saj je 100 m zračne linije naselje Sinja Gorica, sam Kemis pa je tako rekoč umeščen v mesto Vrhnika, do centra mesta je 1 km zračne linije, je naredil hudo napako, ki mora biti sankcionirana. Ni stvar meščanov in vaščanov, da preprečimo umeščanje takega nevarnega podjetja v naš kraj, ampak so dolžni, da se to ne zgodi, poskrbeti za to odgovorni, od davkoplačevalcev plačani birokrati in funkcionarji.
KAZENSKA ODGOVORNOST PODPISNIKA OKOLJEVARSTVENEGA SOGLASJA in sicer po 258. členu KZ-1 nevestno delo v službi ter po 244. členu KZ-1 (Zloraba položaja in pravic) ter tudi povzročitev splošne nevarnosti po 317. členu KZ-1. Ime in priimek osebe, ki je podpisala okoljevarstveno soglasje bomo objavili, ko bomo lahko pogledali gradbeno dovoljenje na Ministrstvu za okolje in prostor, ki ga je izdalo. Naslovili smo prošnjo že v ponedeljek 22. maja 2017, a odgovora še ni. Vsekakor pa gre za politično odgovornost takratnega ministra za okolje in prostor gospoda Karla Erjavca in takratnega župana Vrhnike gospoda Marjana Riharja.
Kemis d.o.o. je uporabno dovoljenje pridobil šele 13. aprila 2011.
Poraja se vprašanje, kako je lahko posloval brez uporabnega dovoljenja, če mora vsak bife, avtomehanična delavnica pridobiti najprej uporabno dovoljenje in šele potem lahko začne poslovati. Zakaj so pristojne inšpekcije dovolile poslovanje Kemis-a brez uporabnega dovoljenja in to v panogi, ki je izredno nevarna za okolje in človeška življenja? Kaj bi se zgodilo, če bi že takrat prišlo do katastrofe?
KAZENSKA ODGOVORNOST INŠPEKTORJEV oz. VODIJ INŠPEKCIJSKIH SLUŽB, KI SO TOLERIRALI DELOVANJE TAKO NEVARNEGA PRAVNEGA SUBJEKTA BREZ UPORABNEGA DOVOLJENJA in sicer po 258. členu kz-1 (Nevestno delo v službi) ter po 244. členu KZ-1 (Zloraba položaja in pravic), ker je neukrepanje pomenilo pomoč Kemis d.o.o. pri pridobivanju protipravne koristi. Imena in priimki inšpektorjev, ki so opravljali inšpekcijske nadzore Kemis d.o.o., bodo objavljeni, ko bomo pridobili zapisnike o inšpekcijskih nadzorih, za katere smo zaprosili že 22. maja 2017, a jih še nismo pridobili. Najbrž se odgovorni sklicujejo na instrukcijske roke, v katerih so dolžni podati informacije javnega značaja, ki so za enostavne zadeve 15 dni, za zahtevne pa 30 dni. Je pa to pokazatelj, glede na aktualnost in urgentnost zadeve, kako se obnašajo, ker gre za povsem enostavne postopke. Nekaj računalniških klikov in so dokumenti na našem elektronskem naslovu.
Kemis d.o.o. pridobi Okoljevarstveno dovoljenje šele 7. junija 2013,
v katerem so navedeni pogoji in navodila, v skladu s katerimi lahko posluje. Glede na ostre zahteve, pod katerimi bi Kemis moral poslovati, bi, če bi to res počel, kakor je bilo v okoljevarstvenem dovoljenju zapisano, ne moglo priti do katastrofe. Čakamo na zapisnike inšpekcijskih pregledov, za katere smo zaprosili 22. maja 2017 in nam jih še niso poslali ali pa nas poklicali, da si njihove vsebine pogledamo.
Iz zapisnikov inšpekcijskih služb bo vidno, ali so bili inšpekcijski nadzori izvajani po letnih načrtih inšpektoratov za izvajanje rednih nadzorov in ali so jih izvajali izredno ter kaj so inšpicirali in kaj so ugotovili ter katere ukrepe so naložili Kemis d.o.o., če so jih. Po pripovedi glavne inšpektorice za okolje na zboru občanov na Vrhniki 26. maja 2017 je bilo slišati, da so v času poslovanja Kemis d.o.o. opravili 5 inšpekcijskih nadzorov in so ugotovili tudi določene nepravilnosti. Zapisnike kot rečeno se čakamo.
Pomembno pa je naslednje. Če je Ministrstvo za okolje in prostor izdalo okoljevarstveno dovoljenje in v njem navedlo določene pogoje in navodila, pod katerimi je lahko Kemis d.o.o. posloval, je bilo dolžno zagotoviti tudi nadzor, da bi ugotavljali, ali odgovorni v Kemis d.o.o. tudi dejansko delujejo v skladu z okoljevarstvenimi zahtevami iz okoljevarstvenega dovoljenja. Če nadzora ni bilo po vseh vidikih pogojev in zahtev, je jasno, kdo je objektivno odgovoren, da je do katastrofe prišlo. Nedvomno pa bo treba ugotoviti, ali je sama naprava (osnovni objekt) za shranjevanje in predelavo nevarnih odpadkov bila narejena za količine, ki so bile odobrene z okoljevarstvenim dovoljenjem podjetju Kemis d.o.o. in ali se je odgovorni v Kemis d.o.o. držal omejitev, kar se tiče količin in vrst nevarnih odpadkov glede na količine, omejene v okoljevarstvenem dovoljenju in glede na dejanske predvidene možne kapacitete za napravo.
Gre namreč tudi za lovilne bazene, ki so bili zgrajeni za primer izlitja nevarnih snovi ali požarnih vod, če pride do eksplozije ali požara, ki se morajo v vsakem primeru izliti v bazene in ne čez. Dejstvo je, da so požarne vode in nevarne snovi iztekle iz bazenov v okolico, v potok Tojnico in drugam. Poraja se vprašanje, ali je bil že projekt, kar se tiče lovilnih bazenov, načrtovan premajhen, možno je, da se je v boksih hranilo preveč nevarnih snovi, da so se s požarno vodo izlili v okolje, ali pa so bile pri gašenju porabljene prevelike količine vode in premalo gasilne pene, da se je požarna voda skupaj z nevarnimi snovmi izlila preko lovilnih bazenov v naravo? So bili lovilni bazeni tudi v podaljšani nadsrešnici, ki je bila zgrajena na črno že leta 2010 in legalizirana šele letos 21. aprila? Če bi objekt - nprava ostala v gabaritih osnovnega projekta z potrebnim odmikom od potoka, se požarne vode in z njimi nevarne strupene snovi ne bi zlile v potok Tojnica.
Če bi bilo načrtovanje pravilno, spoštovane omejitve, kar se tiče količin nevarnih snovi, do katastrofe ne bi moglo priti. Vprašanje za vse odgovorne je tudi, ali so v Kemisu imeli nameščene avtomatske naprave za gašenje. Dvakrat smo v medijih zasledili, da je bilo to pomembno vprašanje postavljeno direktorju Kemisa gospodu Nanutu, ki na to vprašanje ni odgovoril.

Fotografija: Fibernet d.o.o.
V okoljevarstvenem dovoljenju je bil pogoj za delovanje Kemis d.o.o. tudi stroga požarna varnost. Kaj so delali požarni inšpektorji, bo znano, ko dobimo zapisnike. Dejstvo je, da se avtomatsko gašenje ni zgodilo. In ponavljamo, Kemis d.o.o. ni deloval skladno z okoljevarstvenim dovoljenjem, kar bi morali nadzorovati inšpektorji in mu, če niso bili izpolnjeni vsi pogoji iz okoljevarstvenega dovoljenja za poslovanje, naložiti, da pomanjkljivosti odpravi ali pa mu nevarno dejavnost odvzeti. Glede na katastrofo, ki se je zgodila, so KAZENSKO ODGOVORNI VODJE INŠPEKCIJSKIH SLUŽB IN INŠPEKTORJI, KI SO IZVAJALI INŠPEKCIJSKE NADZORE, KER NEPRAVILNOSTI NISO VIDELI. Gre za kazensko odgovornost po 258. členu kz-1 (Nevestno delo v službi), po 244. členu KZ-1 (Zloraba položaja in pravic) in po 317. členu KZ (Povzročitev splošne nevarnosti.)
Kemis d.o.o. v dokumentu Ministrstva za okolje in prostor, ki je kemični tempirani bombi Kemis izdalo okoljevarstveno dovoljenje z zelo ostrimi zahtevami in pogoji, kar se tiče varnosti, z naslovom OCENA TVEGANJA ZA NESREČE Z NEVARNIMI SNOVMI, ni uvrstilo na seznam nevarnih podjetij, niti manj nevarnih.
Tukaj je nedvomno podan utemeljen sum storitve kaznivega dejanja po 258. členu KZ (Nevestno delo v službi), saj posledično ni bil izdelan načrt Civilne zaščite v primeru požara, eksplozije ali izlitja ter poplav v Kemis d.o.o. Zaradi tega pa niso bili ob nesreči izvedeni potrebni preventivni ukrepi za zaščito ljudi in naravnega okolja, ki bi se izvedli, če bi bili v občinskem in državnem načrtu predvideni. Ni bilo niti osnovnaga alarmiranja s sirenami za splošno nevarnost. Vzročna zveza med tem kaznivim dejanjem in posledično povzročeno splošno nevarnostjo, ki jo obravnava 317. člen (Povzročitev splošne nevarnosti) bodo morali ugotavljati za to pristojni.
Glede na to, da je župan Vrhnike strokovnjak s področja ravnanja z odpadki, saj je okoli tri desetletja vodil komunalno podjetje na Vrhniki, in iz odgovornosti do občanov Vrhnike, kar se tiče varovanja zdravja, je imel nalogo zahtevati od pristojnih v državi, da se Kemis d.o.o. obravnava kot vse druge nevarne pravne dubjekte, ki se ukvarjajo z zbiranjem, predelavo in uničevanjem nevarnih odpadkov. Ker tega ni storil, posledično pa Občina Vrhnika oz. CZ ni imela izdelanega varnostnega načrta v primeru nesreče v Kemis d.o.o., mora župan Občine Vrhnika sprejeti objektivno odgovornost in NEPREKLICNO TAKOJ ODSTOPITI.
POTREBNIH PREVETIVNIH UKREPOV V ČASU POŽARA IN PO NJEM NI BILO.
Kako bi lahko bili, če Kemis ni bil uvrščen med nevarne, kar se tiče rokovanja z nevarnimi snovmi? Posledično niso izdelali načrta v primeru požara, eksplozije ali povodnji v tem podjetju, ki je bil v resnici prava kemična tempirana bomba. Če bi bilo drugače, bi pristojna Civilna zaščita vzela v roke načrt in bi najprej sprožila:
• Sirene za splošno nevarnost. To so tiste sirene, ki jih vsako prvo soboto v mesecu preiskusijo, ali delujejo;
• vsi gasilci, ki bi bili za najhujši scenarij določeni in usposobljeni, bi prihiteli na gašenje s kompletno opremo, ki je namenjena za gašenje kemičnih tovarn. Tudi z maskami z notranjim kroženjem za zaščito dihal. Tukaj se je zgodilo, da je večina gasila brez zaščitnih mask za dihala;
• vodja gasilcev bi moral v roke takoj dobiti tloris Kemisa, kjer bi videl, kaj gori, kakšne količine itd, da bi se lahko odločal, kako pristopiti in s čim gasiti. Seveda bi pred tem morali vsi poveljniki enot vaditi in uriti primer take izredne katastrofe;
• aktiviral bi se takoj premični laboratorj ali več njih, da bi ugotavljali misije, in na podlagi tega določali stopnjo ogroženosti in posledično morda evakuacijo ljudi. V takih primerih se v normalnih državah zavzema najhujši scenarij, posledično tudi najostrejši preventivni ukrepi, ki se jih potem lahko omili, ko so znani rezultati meritev;
• obveščanje bi moralo steči brezhibno po vseh vnaprej določenih kanalih in medijih;
• na podlagi verodostojnih meritev bi morali zapreti vrtce in šole, trgovine in tudi katere druge ustanove in obvestiti ljudi, kako ravnati, če bi ne bilo evakuacije;
• vzorci vrtnin, trave, vode in zemlje bi morali biti opravljeni na vsaj 10 km od žarišča požara in selektivno širše;
• moralo bi se natančno vedeti, kdo kaj dela, kdo je za kaj pristojen, v načrtu bi moral biti predviden operativni štab na nivoju države, ki bi koordiniral in sporočal, kaj se dogaja;
• že prej pa bi morali za primer take katastrofe usposabljati prebivalce, da bi se glede na sporočila znali obnašati;
• Morali bi voditi operativni dnevnik, da bi se lahko kasneje opravila podrobna analiza tudi o doseženih časih.
Itd.itd
Ko se je zgodil požar v kemični tovarni, pa ni bilo niti siren, ki naznanijo splošno nevarnost, drugi dan so v gosti smrdljivi megli otroci po pločnikih hodili v vrtce in šole. Že naslednji dan so se igrali na igriščih, po štirih dneh pa je prišel ukaz, naj operejo igrala in naj se na igriščih ne igrajo. So to preventivni ukprepi od nikakršnih, ko so se pristojni zbodili pa so ukprepe zaostrili, seveda prepozno. Otroci so se že najedli, morda tudi strupenih snovi, ki so se usedle v peskovnike, travo in na igrala.
Ali naj kmetje kosijo travo, ali naj se živali pasejo na zelenicah, ali naj ljudje jedo povrtnine, ni bilo jasno, za slednje je bilo najprej sporočeno, naj ljudje operejo solato (ali je sicer ne?), kasneje pa, naj ničesar z vrtov ne uživajo. Bravo, je treba še kaj dodati? Namesto, da bi najprej preventivno zaostrili ukrepe in jih postopoma omilili, je bilo ravno obratno.
Zahtevamo kazensko odgovornost najmanj po znanem členu KZ1, ki govori o nevestnem delu v službi vseh, ki niso opravili svojega dela, pa so zadolženi za varovanje zdravja ljudi in okolja, ter odstope njihovih nadrejenih. Šef Inštituta za varovanje zdravja odstop! Ministrica za zdravje ni rekla še nič in jo noben medij še nič ni vprašal, kako varuje zdravje navcadnih smrtnikov. Tudi kmetijski minister nič, a kmetje ne vedo, kaj in kako je s krmo za živali, kako naj označijo bale krme, ki so jo pokosili in shanili. Kam s pridelki, mlekom, skuto, sirom, jogurti, mesom itd? Kdo bo plačal škodo, če to odnesejo v varno uničenje?
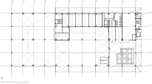
Kemis d.o.o. je gradil na črno.

To je osnovni tloris objekta KEMIS d.o.o., ki je bil po zahtevah za gradnjo takih objektov umeščen 50 m od vodnega vira, v tem primeru potoka Tojnica. Potem pa je Kemis d.o.o. na črno podaljšal nadstrešnico in tako tudi svojo nevarno dejavnost za 30 m, kar je pomenilo več kršitev. Tudi kršitve prepovedanega približevanja vodnemu viru. 258. člen KZ-1 (Nevestno delo v službi) je izkazano tudi v tem primeru inšpektorjev. Kako in zakaj je Upravna enota legalizirala črno gradnjo brez sankcij, se bo prav tako treba vprašati in tudi na tej točki postaviti kazensko odgovornost vsaj vodje, ko je to delo tudi za Komisijo za preprečevaje korupcije. Izkazana je kazenska odgovornost tistega, ki je pripravil legalizacijo črne gradnje brez sankcij in podpisnika gradbenega dovoljenja na Upravni enoti Vrhnika. 244. člen KZ-1 (Zloraba položaja in pravic).
Nedvomno je izkazana objektivna odgovornost župana Občine Vrhnika, gospoda Stojana Jakina, ker ima v svoji sestavi ljudi, ki legalizirajo črne gradnje brez sankcioniranja uzurpatorjev prostora, še posebej v primeru kot je ta, saj je Kemis d.o.o. s črno gradnjo širil nevarno dejavnost za zdravje ljudi in naše naravno okolje. Takojšnji odstop župana je najmanj, kar pričakujemo.

Z rdečo obkrožena na črno zgrajena nadstrešnica je po trditvi UE Vrhnika bila zgrajena že leta 2010. Za gradbeno dovoljenje je investitor Kemis d.o.o. zaprosil 1. marca 2017, dobil ga je v rekordno hitrem času, kar je v Sloveniji prav neverjetno, in sicer že 21. aprila 2017. Postavlja se vprašanje, kako je lahko dobil Kemis d.o.o. 2011 uporabno dovoljenje, 2013 še okoljevarstveno dovoljenje za dejavnost, ki jo je izvajal tudi v na črno zgrajenem delu objekta, v katerem se opravlja za ljudi in preostalo naravo ravnanje z nevarnimi odpadki, ki jo nedvomno opredeljuje okoljevarstveno dovoljenje?
Iz gradbenega dovoljenja za podaljšanje osnovnega objekta, ki smo si ga ogledali na UE Vrhnika, smo ugotovili, da je investitor Kemis d.o.o. sicer 7 let po tem, ko je že zgradil na črno, oddal vlogo na Ministrstvo za okolje za okoljevarstveno soglasje, a je to vlogo zavrglo, češ, da takega soglasja ne potrebuje. Znova se sprašujemo, kaj so počeli inšpektorji, da niso videli, da je podaljšek objekta glede na osnovni projekt približan z dejavnostjo do potoka Tojnica, kar je nedopustno.
Nobeden od inšpektorjev pa ni vprašal niti tega, ali ima Kemis d.o.o. gradbena dovoljenja še za tri objekte, ki so označeni na fotografiji, ki so nedvomno postavljeni na črno. Nič se ne sme zgraditi oz. postaviti na katerikoli parceli, če nima gradbenega dovoljenja, razen enostavnih montažnih objektov določenih manjših mer, ki štejejo kot lope ali shrambe za orodje, krmo ali zavetje za živali.
Vsak inšpektor, bodisi za okolje in prostor, kmetijski inšpektor, požarni inšpektor bi moral, če je opazil objekte, ki so pomenili širjenje dejavnosti izven gradbenega dovoljenja, bi moral obvestiti o spremembah svojega kolega. Seveda, če bi imeli v Sloveniji res inšpektorje, ki ne prežijo samo na navadne smrtnike, privilegiranim pa takole gledajo skozi prste.
Tudi tukaj gre za kazensko odgovornost, pa ne samo inšpektorjev, ki niso videli ob obiskih ničesar nenavadnega, nekaterih sploh blizu ni bilo. Na primer gradbenega inšpektorja očino v vseh letih ni bilo, kako je inšpekcijski nadzor izvajala okoljska inšpektorica, da ni opazila dejavnosti z nevarnimi odpadki ob potoku v na črno podaljšani nadstrešnici, v dveh na novo postavljenih poslovnih halah in zunaj skladišč, kjer so nastajale divje deponije.
ODGOVORNOST DIREKTORJA KEMISA JE OPISANA V KAZENSKI PRIJAVI, KI SMO JO 24. maja 2017 POSLALI NA MILICO.



Zatajila je tudi milica.
Dokler tako dela, ni policija, ampak je še vedno milica – podaljšana roka oblasti in ne servis državljanov, ki jo plačujemo. Po poročanju medijev je stekla kriminalistična preiskava, direktor Kemis-a pa je mirno hodil v podjetju, lahko je prirejal dokumentacijo, količine, uničeval in vplival na priče, pa tudi na javnost, saj je v vseh medijih razlagal svoje poglede, se izgovarjal in lagal. To je ob taki tragediji in povzročeni splošni nevarnosti povsem nedopustno in nezaslišano. Tudi na tem področju obstaja zakonodaja, pravila in nekakšna strokovna praksa.
V Kemis bi po taki katastrofi smeli vstopiti samo še preiskovalci in neodvisni strokovnjaki, ki bi zavarovali računalnike, dokumente in vse, kar je treba, da se preiskava opravi profesionalno in brez vplivov kogarkoli. Ne gre za to, da bi koga obtoževali vnaprej, ampak gre za strokovno in pošteno delo, ki ga morajo opraviti preiskovalci, policija, tožilec in preiskovalni sodnik, ki ga nihče ni niti omenil, da bi bil na mestu, kjer so povzročili splošno nevarnost in uničili del naravnega okolja za veliko let. Potok Tojnica je mrtev.
Iz zapisanega je popolnoma jasno, da je zatajilo vse, kar bi moralo odigrati ljudem koristna dejanja že od umeščanja nevarne tempirane kemične bombe v prostor, ki je tukaj, kjer je danes, popolnoma neprimeren. Deluje na poplavnem območju, ob potoku, v katerem so bile zaščitene živalske in rastlinske vrste, v krajinskem parku, ki spada v Naturo 2000, neposredno ob naselju Sinja Gorica in tudi preblizu ljudi na Vrhniki.
Črne gradnje in s tem nenadzorovano širjenje nevarne dejavnosti se je dogajalo. Inšpektorji od okoljskega, požarnega, gradbenega in še kakšnega. Upravna enota Vrhnika je z bliskovito naglico uredila črno gradnjo za nazaj. Nevarna kemična bomba pa ni bila uvrščena na seznam niti manj nevarnih podjetij, ki ravnajo z nevarnimi odpadki. Kar je posledično botrovalo temu, da ni bilo izdelanih državnih načrtov za primer eksplozije, požara ali povodnji.
Na koncu pa je zatajila tudi policija, tožilstvo in sodstvo, ker se glavni odgovorni, zakoniti zastopnik Kemis d.o.o. ni znašel v izolaciji, da ne bi mogel uničevati dokumentov, jih prirejati, odstranjevati računalnikov, vplivati na sodelavce kot morebitne priče in na javnost, kar je počel ves čas v vseh možnih medijih.
GLEDE NA DEJSTVA IN TA SO GROZNA, LAHKO MIRNO POTEGNEMO ČRTO IN DOLOČIMO OBJEKTIVNO ODGOVORNOST DRŽAVNIH FUNKCIONARJEV NA POLOŽAJIH. NAJMANJ, KAR PRIČAKUJEMO, JE, DA TAKOJ ODSTOPI MINISTRICA ZA OKOLJE IRENA MAJCEN, OBRAMBNA MINISTRICA ANDREJA KATIČ, MINISTRICA ZA ZDRAVJE MILOJKA KOLAR CELARC, NOTRANJA MINISTRICA VESNA GJOERKEŠ ŽNIDAR IN MINISTER ZA PRAVOSODJE GORAN KLEMENČIČ.
DA JE NEKAJ TAKO POMEMBNEGA, KO GRE ZA VARNOST LJUDI IN NARAVNEGA OKOLJA, TAKO ZELO NEUREJENO IN JE DIREKTNO IGRANJE S ČLOVEŠKIMI ŽIVLJENJI, JE NEZASLIŠANO IN ZAHTEVA ODSTOP PRVEGA MOŽA TAKE NESPOSOBNE VLADNE EKIPE, MIRA CERARJA. TO, KAR SE JE ZGODILO, JE PODLAGA ZA USTAVNO OBTOŽBO, KER NJEGOVI PODREJENI MINISTRI IN OSTALI URADNIKI NISO RAVNALI V SKLADU Z ZAKONI IN USTAVO, POSLEDIČNO JE BIL KRŠENA ENA TEMELJNIH ČLOVEKOVIH PRAVIC, PRAVICA DO ČISTEGA NARAVNEGA OKOLJA, KI JE ZAPISANA KOT ENA OD OSREDNJIH TUDI V EVROPSKI KONVENCIJI O ČLOVEKOVIH PRAVICAH.
Opozorila Vrhničanom in okoličanom ter priporočila za bodoče ravnanje.
1. V Gibanju OPS smo glede na to, kako delujejo institucije, ki v bistvu delujejo konfuzno, neorganizirano, nepovezano med sabo, nestrokovno, zmedeno, raztrgano, neodločno in tudi arogantno, prepričani, da jim ne gre verjeti, ko nam razlagajo ugotovitve rezultatov meritev trav, povrtnin, zemlje, vode in zraka.
2. Največja prevara pa je začrtan krog 1.600 metrov od Kemis-a, v katerem so začrtali mejo oškodovancev. Najbrž veste, zakaj. Da za posledice izven tega kroga ne bo nihče odgovarjal in za odškodninske tožbe ni možnosti. Znova kalkulirajo in hočejo narod žejnega prepeljati čez vodo. Vsi, ki so izven tega kontaminiranega kroga, se bodo obrisali pod nosom, ko ne bo hotel nihče kupiti njihove pridelane hrane.
Če bo nekdo zbolel, bodo rekli, da pač tisti del Vrhnike ni bil kontaminiran, vsi pa dobro vemo, kako je smrdelo po celi Vrhniki in okolici, kako je dim potoval veliko širše in kakšna megla je bila prvi dan po požaru in zaenkrat samo Bog ve, kaj je bilo v njej, ki se je sesedalo na zelenje in zemljo ter v vode. Čez nekaj dni pa je močan dež vse skupaj spral v podtalnico. Klicali so nas celo iz Kranjske gore, da jim je smrdelo, iz Ajdovščine, sploh pa iz Logatca in okoliških krajev. Res se iz nas norca delajo. Kam so potem v resnici odšli vsi strupi, ki jih je tone zgorelo v požaru???

3. Predlagali smo že, da bi zbrali nekaj denarja in poklicali na vzorčenje vsega potrebnega nek tuj laboratorij, da bomo imeli drugo mnenje in bomo meritve lahko primerjali, ker morajo razumeti, da je zaradi vsega, kar se je zgodilo, zaupanje povsem podrto.
4. Še enkrat bo treba pregledati vse listine, iz katerih bi se dalo ugotoviti, kaj dejansko je bilo v Kemisu, ki je morda tudi zgorelo, da bi neodvisni strokovnjaki lahko pregledali določeno število ljudi, da vidimo, kaj je v naših telesih, ko bodo vedeli, na kaj morajo biti pri toksikoloških pregledih pozorni. Še posebej gasilci, ki so brez zaščitnih mask sodelovali pri gašenju bi morali na toksikološke preglede v tuj neodvisen laboratorij.
5. Čas bi bil, da se predramite in začnete spodbujati drug drugega, da se večina intenzivno vključi v podpisovanje peticije, da se tempirano kemično bombo Kemis zapre. Kdor mu želi dati popravni izpit, je lahko rečemo ali nor ali pa ima od te ekološke bombe sebične materialne koristi in mu je več to kot svoje zdravje in zdravje njegovih otrok ter ga zdravo življenjsko okolje ne zanima.
6. Čas bi bil, da se začnete zavedati, da ste vi oblast in so birokrati ter funkcionarji v vaši službi in ni več totalitarizma, da bi morali biti vsi tiho, ko oni govorijo in kar govorijo, moramo vzeti, da je pravilno. V 3. členu Ustave RS piše, da ima ljudstvo v rokah oblast, ki jo uresničuje neposredno ali pa preko izvoljenih predstavnikov. Ko bo podpisov preko polovica, kolikor ljudi ima prijavljeno stalno bivališče na Vrhniki, bo to zaveza za svetnike, da predlagajo sklep o zaprtju Kemis-a in glasujejo za zaprtje v skladu z večinsko ljudsko voljo, ki je izkazana s podpisom peticije.
Podpišite elektronsko peticijo in pišite na naš e-naslov, da vam pošljemo obrazce. Če boste donirali po svojih zmožnostih, bomo natisnili primeren pisni material, da bomo spodbudili še druge in bo podpisovanje steklo hitreje.
7. Če se zdaj ne podvizamo in zapremo to kemično pošast, je ne bomo nikoli. Bo pa treba pogledati še druge. Tudi atomsko centralo v Krškem, ki je zgrajena na tektonski prelomnici na potresnem področju. Se zavedate, kaj bi se zgodilo? Mar ni skrajni čas, da nadomestimo pridobivanje elektrike iz obnovljivih virov in postopno še eno grozečo pošast zapremo. Vedite, da na teh, tudi nevarnih, objektih nekateri kujejo velike dobičke, mi pa plačujemo drago elektriko.
Zdaj pa opazujte medije in politiko, kako se bodo sprenevedali v smislu, da tega, kar smo tukaj zapisali, sploh ni, politiki pa bodo navajali dejstva iz tega zapisa, a seveda selektivno in brez navajanja avtentičnega avtorstva. Že zdaj se kot predstavniki skoraj 2.000 Vrhničanov in okoličanov prijavljamo k besedi na izredni seji, ki bo na Vrhniki na Občini, kjer bodo zasedali svetniki in seveda na izredni seji v Državnem zboru RS.
Čas bi že bil in to skrajni, da se neha diskriminirati eno najbolj aktivnih civilnih iniciativ, v kateri se ukvarjamo z razkrivanjem vzrokov, ki povzročajo vse več negativnih posledic, med katerimi je tudi katastrofa v Kemisu. Z ignoranco in diskriminacijo kažejo oblastniki in mediji, da še vedno živimo v diktaturi, kjer imajo besedo na javnih mestih in v medijih samo tisti, ki so na liniji oblastniške oligarhije.
Tole kar ste prebrali bi v normalni državi v kateri deluje pravična pravna država, morale narediti pristojni organi in inštitucije. Kdo bo poravnal račun, ker delamo kar bi morali za to plačani, namesto, da se sprenevedajo in na drug drugega prelagajo odgovornost. Bo res zanimivo spremljati kako bo v nadaljevanju vse skupaj potekalo. Z obljubami, da bodo zdaj pa uredili, da se stanje ureja, da v Tojnici že ribice plavajo, da bodo vse skupaj minimizirali in ne bo nihče več čutil potrebe, da bi kdo za kaj odgovarjal. Vsi državljani pa bi morali vzeti to kot opozorilo, ko lahko naslednjič poči huje in morda kar v atomski centrali Krško. Ne podcenjevati tega kar se je zgodilo, treba je določiti tudi odgovornost vseh, ki grejejo udobne fotelje, namesto, da skrbeli za varnost vseh, ki jih plačujemo. Samo na Ministrstvu za okolje je zaposlenih med 250 in 499, točnega podatka tako in tako ni.

Vse dobro veliko zdravja in se vidimo!
Lado Troha, predsednik
Gibanje OPS (Osveščeni Prebivalci Slovenije)
Ruska ulica 2 (Naslov za obveščanje: Stara Vrhnika 116. 1360 Vrhnika)
1000 Ljubljana
Telefon: 031 274 419
Elektronska pošta: info@gibanje-ops.com
Hvala, če boste donirali za možnost angažiranja tujega neodvisnega laboratorija, za toksične preiskave določenega števila ljudi in za tekoče stroške. predstavniki države (berite lakaji) so nam do sedaj, namesto financiranja - za nevladne, neodvisne civilne iniciative, izstavljali odločbe za plačilo glob in to popolnoma brez zakonske podlage.
Transakcijski račun (BIC): SI56 1914 6501 1737 734 SWIFT: SZKBSIXX




